

本案为00后年轻夫妇婚房,不想拘泥于传统而是追求个性时尚,设计师将居住场景与情感需求深度解构,最终以现代极简主义为骨骼,构筑起充满生命张力的空间。




沙发以岛屿式形态居于场域内打破传统客厅单一的动线,形成多向围合的交流场域。纯色哑光柜面与雅黑木饰面碰撞,蔓生更多元的情感切面。



客餐厨一体化空间不再被功能分隔,而是容纳每一种生活状态的展开。


推倒厨房与餐厅之间的物理隔阂,开放式设计用通透的视野重构了家的呼吸感。




主卧在色调上整体和谐统一,以柔和的中性色为基调,打造出符合当代青年温馨与时尚的氛围,通过留白更真实地传递空间的魅力。


设计师把主卧、主卫、衣帽间巧妙地整合在一个空间,动线连贯便捷,提高空间使用率。



儿童房的设计仍保留了一丝童趣,用最少的设计语言,回应最深的居住情绪。
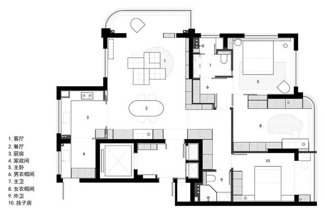
平面图

项目地点:浙江·瑞安
设计公司:不尔设计
项目面积:127㎡
主案设计:周豪
项目摄影:无介视觉
嘉多网提示:文章来自网络,不代表本站观点。